Дом, переулок Новый, 1 Показать на карте
с. Ново-Талицы
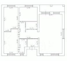
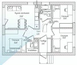
ВОЗМОЖНА СЕМЕЙНАЯ ИПОТЕКА 6 %! Об условиях - подробности по телефону!К продаже предлагается одноэтажный дом из тёплых керамических блоков с облицовкой фасада кирпичом. Площадь дома - 130 квадратных метров, а площадь участка - 9,5 соток. В доме четыре комнаты.Стоимость дома с участком, указанная в объявлении, актуальна при наличном расчёте. В эту сумму входит:* фундамент на железобетонных сваях с ростверком,* перекрытие цоколя из плит ПБ,* стены из керамического блока,* кровля из металлочерепицы,* металлопластиковые окна с профилем 70 мм,* заведение коммуникаций (свет, вода, газ).Также возможна предчистовая или финишная отделка и финальный монтаж инженерных коммуникаций (за дополнительную стоимость).Дом находится в коттеджном посёлке ''Изумруд''. К участку ведёт асфальтированная дорога, а в 50 метрах расположена остановка общественного транспорта. Это идеальное место для тех, кто хочет жить в тихом и уютном месте, но при этом иметь доступ ко всем удобствам городской жизни.id:43328. - Безопасность- Лучшие юристы окажут полное сопровождение на всех этапах купли/продажи- Качество и Профессионализм. Наши специалисты признаны лучшими по уровню сервиса порталов.- Надежность и экономия. Мы являемся ключевыми партнерами всех ведущих банков. Личный ипотечный брокер выберет для Вас оптимальную программу ипотеки. - Прозрачность. Фиксированное агентское вознаграждение. Оплата только после совершения сделки.- Комфорт. Весь комплекс услуг купли/продажи. Формат ''одного окна'' в одном офисе в центре города- Уверенность. Мы входим в ТОП- 25 ведущих агентств недвижимости РФ по версии рекламных площадок.Сделка с недвижимостью - работа профессионалов. Вместе создаем наследие.
130 м2
1 этаж
Кирпич
- Показать контакты
- Добавить в избранное
130 м2
1 этаж
Кирпич
14 250 000
109 615 /м2
