Если цена в объявлении изменится, мы сразу сообщим вам об этом на электронную почту.
Нажимая «Подписаться», вы соглашаетесь с правилами.
продам коттедж, д. Малинки11 300 000 ₽
11 апр 2025
Дата публикации объявления
Обн. 22 мая
Дата обновления объявления
69 029 ₽/м²
Чистая продажа
Термин "Чистая продажа" означает, что в квартире никто не прописан или
есть куда выписаться и вывезти вещи. Это лучший вариант для покупателя.
Вероятность срыва сделки минимальна.
Этажей2
Площадь участка20 соток
Общая площадь163,7 м2
Материал домакирпич
ЭлектричествоЕсть
Газоснабжениецентральное
Арт. 98653462 Дом, в котором хочется жить! Он полностью готов для реализации ремонта по Вашим желаниям и исполнения мечты жить в поселке закрытого типа с благоустроенной территорией ''Малинки''.
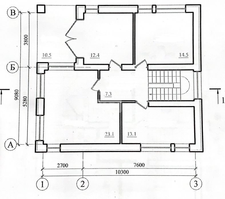
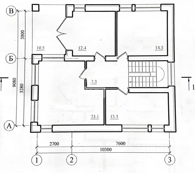
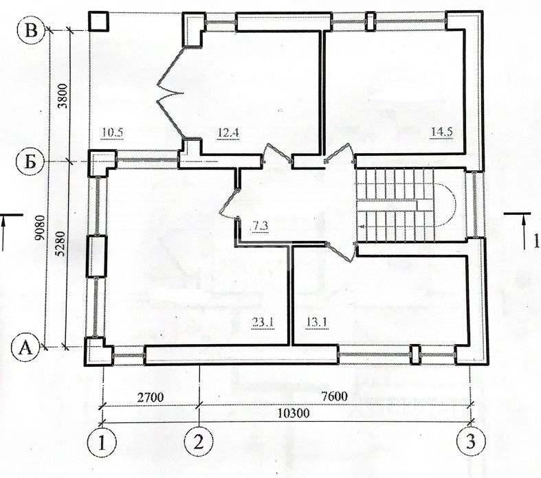
Общая площадь дома 162.5 кв.м., 2-х этажный .
На первом этаже:
просторная и светлая кухня-гостиная 27.4 м² с выходом на террасу 10.5 м² кабинет-гостевая комната 25.9 м² котельная 7.5 м² гостевой сан. узел 1.6 м²
На втором этаже:
3 спальни площадью 23.1 + 14.5 + 12.4 м² с выходом на террасу 10.5 м² совмещенный сан. узел 13.1 кв.м.
Газ подведен к дому, проект оплачен. Вода - скважина.
Арт. 98653462 Дом, в котором хочется жить! Он полностью готов для реализации ремонта по Вашим желаниям и исполнения мечты жить в поселке закрытого типа с благоустроенной территорией ''Малинки''.
Общая площадь дома 162.5 кв.м., 2-х этажный .
На первом этаже:
просторная и светлая кухня-гостиная 27.4 м² с выходом на террасу 10.5 м² кабинет-гостевая комната 25.9 м² котельная 7.5 м² гостевой сан. узел 1.6 м²
На втором этаже:
3 спальни площадью 23.1 + 14.5 + 12.4 м² с выходом на террасу 10.5 м² совмещенный сан. узел 13.1 кв.м.
Газ подведен к дому, проект оплачен. Вода - скважина. Дом построен из керамического кирпича, снаружи отделка сенерджи с декором из керамогранита, окна ПВХ с ламинацией под темное дерево, крыша металлочерепица со снегозадержанием и смонтированной водосточной системой, перекрытия ЖБ плита. Смонтирована бетонная лестница с высоким окном ''второй свет'' при подъеме на второй этаж.
Дом располагается на большом, правильной формы участке 20 соток, вокруг деревья, кустарники и прямой выход к воде внизу участка.
На территории коттеджного поселка есть площадка воркаут, открытый бассейн, общая зона барбекю, баскетбольная площадка. Рядом располагается конный клуб Малинки
От центра города Иваново до дома легко и удобно добираться без пробок по асфальтовым дорогам — всего 25 минут.
Дом строился по проекту. Выгодная цена, учитывая все плюсы и возможности. Нет никаких обременений и долгов. Чистые готовые документы, быстрый выход на сделку.
Все вопросы и пожелания обсуждаются и решаются. Не откладывайте решения на потом, пока Вас не опередил кто-то другой. Звоните! Показ в удобное для вас время по договоренности.